新房
二手房
租房
商业
小区
资讯
登陆
资讯
楼盘
首页
市中区房产
市中区楼盘
市中区
翡翠森邻
户型分析
翡翠森邻
综合评分:
3.7
/5分
小户型投资
楼盘首页
楼盘详情
楼盘动态
户型分析
楼盘相册
历史价格
楼盘评论
全部(3)
一室(1)
三室(1)
四室(1)
一室房型
1室1厅1卫1阳台
48.52m²(建面)
三室房型
3室2厅2卫2阳台
122m²(建面)
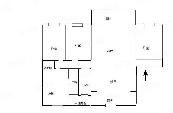
四室房型
4室2厅2卫2阳台
160m²(建面)