新房
二手房
租房
商业
小区
资讯
登陆
资讯
楼盘
首页
市中区房产
市中区楼盘
市中区
时代长风
户型分析
时代长风
综合评分:
--
/5分
楼盘首页
楼盘详情
楼盘动态
户型分析
楼盘相册
历史价格
楼盘评论
全部(1)
三室(1)
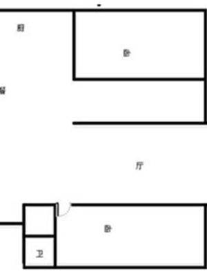
时代长风
3室2厅2卫1阳台
0m²(建面)