新房
二手房
租房
商业
小区
资讯
登陆
资讯
楼盘
首页
市中区房产
市中区楼盘
市中区
永盛花园
楼盘首页
永盛花园
综合评分:
--
/5分
楼盘首页
楼盘详情
楼盘动态
户型分析
楼盘相册
历史价格
楼盘评论
永盛花园
楼盘概况
0
元/m²(参考均价)
价格走势
贷款计算器
花园洋房 3.9万/平 报价时间:2024年02月23日,价格有效期:14天 该价格为参考价格,实际价格以开发商为准
主力户型
二室(1)
全部
项目地址
市中乐山市市中区东坡路27号
预售证
全部
更多
永盛花园
楼盘信息
18881302288
了解更多项目信息.
永盛花园楼盘动态
更多动态
暂无最新楼盘动态
内容待定
永盛花园户型分析
二室(1)
更多户型
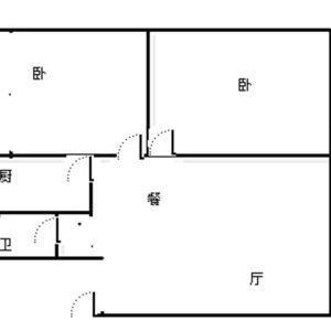
永盛花园
2室2厅1卫1阳台
0m²
永盛花园楼栋信息
注:按下鼠标不松可以拖动图片
未售
在售
售完
永盛花园位置及周边
永盛花园楼盘图库
实景图(4)
更多图片
永盛花园实景图
永盛花园实景图
永盛花园实景图
永盛花园实景图
永盛花园楼盘点评
共44条
更多点评
更多点评
永盛花园楼盘点评
共44条 更多点评