新房
二手房
租房
商业
小区
资讯
登陆
资讯
楼盘
首页
户型大全
楼盘搜索
户型搜索
区域
不限
乐山
峨眉山
五通桥
沙湾
犍为
井研
夹江
沐川
金口河
峨边
马边
面积
不限
70平以下
70-90平米
90-100平米
100-110平米
110-120平米
120-130平米
130-150平米
150平米以上
均价
不限
3000元以下
3-4000元
4-5000元
5-6000元
6-7000元
7-8000元
8000元以上
房型
不限
一室
二室
三室
四室
五室
五室以上
已选条件
110-120平米
7-8000元
清空
户型大全
共找到
56
个户型
默认排序
均价
面积
景颂
参考均价: 8000
元/㎡
参考总价: 92
万元/套
楼盘名称:
筑诚栖悦
楼盘地址: 四川省乐山市市中区三苏路599号
115
平米
4室2厅2卫1阳台
洋房D户型
参考均价: 7500
元/㎡
参考总价: 85.76
万元/套
楼盘名称:
峨眉黑森林
楼盘地址: 峨眉山市黄湾镇景区路一段53号
114.34
平米
3室2厅2卫1阳台
B
参考均价: 7300
元/㎡
参考总价: 81.03
万元/套
楼盘名称:
邦泰悦九章
楼盘地址: 乐山市市中区金紫街(天立御景峰旁)
111
平米
4室2厅2卫1阳台
B
参考均价: 7300
元/㎡
参考总价: 85.41
万元/套
楼盘名称:
邦泰通江云境
楼盘地址: 乐山市中心城区通江片区凤凰路北段东侧
117
平米
4室2厅2卫1阳台
D1
参考均价: 7000
元/㎡
参考总价: 79.8
万元/套
楼盘名称:
峨眉领丰云中墅
楼盘地址: 峨眉佛光西路
114
平米
3室2厅2卫1阳台
C-1
参考均价: 7600
元/㎡
参考总价: 87.4
万元/套
楼盘名称:
滟澜洲花漾里
楼盘地址: 乐山市市中区市中青江路南段666号
115
平米
3室2厅2卫1阳台
A户型
参考均价: 7500
元/㎡
参考总价: 85.5
万元/套
楼盘名称:
邦泰央著
楼盘地址: 乐山市通江片区龙游路北段和白燕路北段交汇处(和邦小区旁)
114
平米
3室2厅2卫1阳台
青江花园城E1
参考均价: 7000
元/㎡
参考总价: 77
万元/套
楼盘名称:
青江花园城
楼盘地址: 青江花园城扼踞长青路主干道
110
平米
4室2厅2卫1阳台
D2
参考均价: 7100
元/㎡
参考总价: 80.94
万元/套
楼盘名称:
未来花园城
楼盘地址: 乐山国家高新区·嘉祥外国语学校旁
114
平米
4室2厅2卫2阳台
D1
参考均价: 7100
元/㎡
参考总价: 80.94
万元/套
楼盘名称:
未来花园城
楼盘地址: 乐山国家高新区·嘉祥外国语学校旁
114
平米
4室2厅2卫2阳台
A1
参考均价: 7000
元/㎡
参考总价: 79.1
万元/套
楼盘名称:
领丰·嘉州外滩
楼盘地址: 市中区牟子片区翡翠路东侧(滨江花园城旁)
113
平米
4室2厅2卫2阳台
B1
参考均价: 7500
元/㎡
参考总价: 86.25
万元/套
楼盘名称:
和喜云璟
楼盘地址: 乐山市中心城区通江片区乐青路东侧,檀木南街南侧,杨山路北侧
115
平米
4室2厅2卫2阳台
C1户型
参考均价: 7600
元/㎡
参考总价: 85.74
万元/套
楼盘名称:
米易太阳谷
楼盘地址: 四川省攀枝花市米易县新山傈僳族乡
112.82
平米
3室2厅2卫3阳台
B4户型
参考均价: 7600
元/㎡
参考总价: 84.99
万元/套
楼盘名称:
米易太阳谷
楼盘地址: 四川省攀枝花市米易县新山傈僳族乡
111.83
平米
2室2厅2卫3阳台
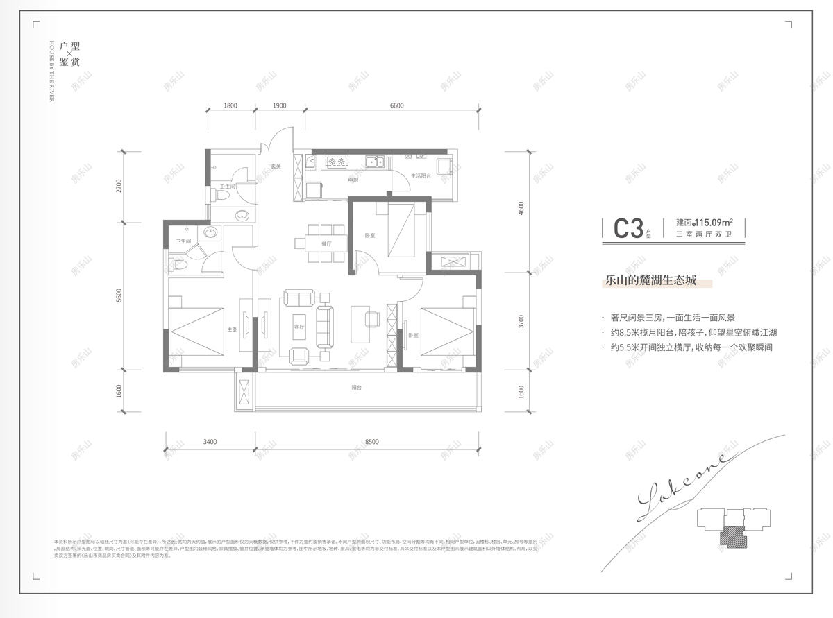
C3户型
参考均价: 7300
元/㎡
参考总价: 84.02
万元/套
楼盘名称:
同森锦樾1号
楼盘地址: 滨江路北段(罗浮盛世旁)
115.09
平米
3室2厅2卫2阳台
1
2
3
4