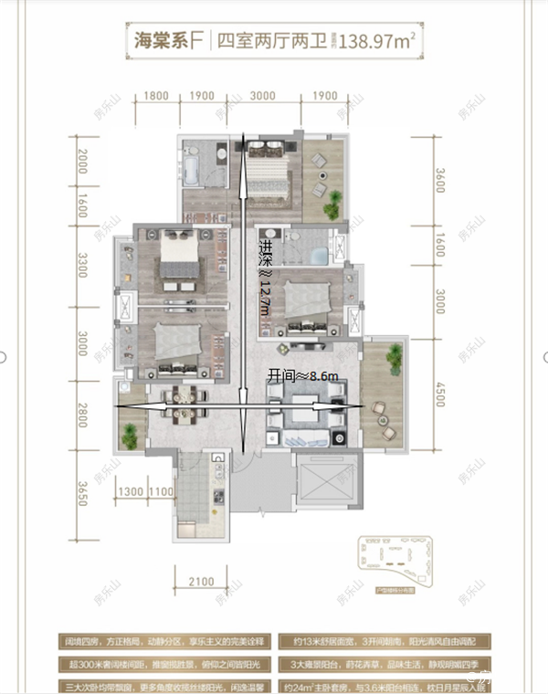
天立御景峰丨海棠系F户型详解
天立御景峰
- 楼盘地址
- 乐山市中心城区通江片区文星后街南侧
- 咨询电话
- 18881302288
乐山房产网 天立御景峰是天立集团进驻乐山的首个作品,以严苛的豪宅标准打造TOP峰系1号作品,专为都市顶峰人士定制。作为改善型豪华社区,天立御景峰的户型面积普遍较大,部分大平层更是惹人注目。今天我们便来着重说说海棠系F户型。

1.户型尺寸
户型建筑面积约为139.97㎡,功能配置为四室两厅两卫三阳台,属于大套四户型。其中,客餐厅一体,客厅面积约22.05㎡,餐厅面积约8.96㎡,合计面积约为31.01㎡;主卧面积约17.64㎡(含卫),其他三次卧面积从大到小分别约为12.21㎡,11.7㎡,11.1㎡,四卧总面积约为52.65㎡;景观阳台面积约为8.55㎡,生活阳台面积约3.64㎡,主卧私密阳台面积约6.84㎡,阳台总面积达19.03㎡;厨房面积约7.665㎡。

2.入户玄关
玄关是我们离开家之前最后一个待的地方,也是回家后最先迎接我们的地方,是室内室外的缓冲区域。

海棠系F户型玄关颇具亮点,玄关入口即电梯出口,出口为客餐厅正门,实现了电梯直接入户。玄关面积较大,超过4㎡,装饰改造空间较大,具有较强的可塑性。出玄关入正厅,开门见山就是面积最大的客餐厅,横向视野广阔;稍远处为卧房廊道,纵深感较强。综合来看,入户后视野开阔,空间立体感得以充分释放。

3.房屋朝向
一般来说,朝南的房屋采光良好,冬暖夏凉,是为最佳;朝北的房屋一年四季采光较差,夏天虽凉爽,冬天阴冷;朝东的房屋采光通常较好,但通风较差;朝西的房屋光照短而急促,采光时间较短,夏季常出现午后暴晒的现象;朝东南,西南的房屋采光良好,但相应通风较差及易出现“西晒”。

F户型总体为正南朝向,南北通透。客餐厅一体,双阳台相对,客厅能朝南开窗,餐厅能向北开窗,双阳台间无遮挡,风可以穿堂而过。次卧南北房间房间门对门,双开门后,空气加速对流作用使得风能从一个房间穿过另一个房间。此外,室内所有房间、各类功能区皆有窗户或阳台,无暗间,保证所有房间敞亮通透。

4.家庭动线
家庭动线是指人在家里为完成不同动作所必须经过的不同路线。从功能的角度来说,动线分为三种:起居动线、家务动线、宾客动线。动作所经路程越短越合理,时间成本越低,效率相应最高。功能区域可分为动区及静区,一般来说卧室、书房指静区,除卧室以外的其他区域指动区。从布局的角度而言,常见的家庭动线一般分为:放射状、枝桠状、棋盘格状。合理动向应遵循的原则是:三条动线少交叉,越短越节省时间。




海棠系F户型属于枝桠状动线,动静分区鲜明,由门口至廊道为主动线,项两侧延伸。举例来说,若把主动线看成一棵树的树干,枝桠便是分动线,通向餐厅、客厅和次卧。树干直通主卧,主分动线间相对垂直。三条动线并行不悖,交叉点极少,户型设计较为合理。

5.开间进深
用白话来说,开间指房子房子东西之间的宽度;进深是指房子南北之间的长度。若户型的开间大进深小,采光和通风则较好,但室内的温度与湿度不稳定。若户型的开间小进深较大,室内采光将较差,整体偏暗。开间和进深的最优比例应为4∶6。
海棠系F户型整体开间约8.6m,进深约12.7m,与4:6的最优黄金比例仅差不到百分之一,因此全年采光面积大,通风顺畅,室内的温湿度适宜且相对稳定,能给予主人稳定温暖的居住环境。

总体而言,天立御景峰海棠F户型各要素设计合理,朝向合理,不存在短板,非常值得入手。
楼盘位置:乐山市中心城区通江片区文星后街南侧
联系方式:400-0833-063转8888

暂无评论,快来抢沙发吧!